
Construction Drawings
CONSTRUCTION DRAWINGS
Custom Residential | Renovation | Multi-family Residential






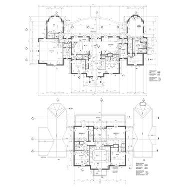
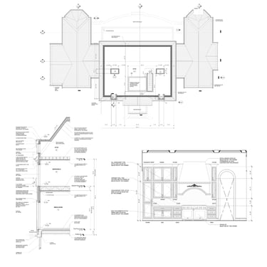
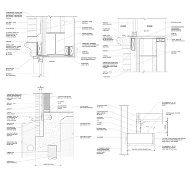
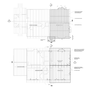
Custom Luxury Home
Location: Massachusetts, USA
Type of Construction: New Construction
Scope of Work:
→ Design Development
→ Construction Drawings
Software:
→ Revit 2025






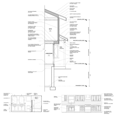
White Residence
Location: Massachusetts, USA
Type of Construction: Addition and Renovation
Scope of Work:
→ Design Development
→ Construction Drawings
Software:
→ Revit 2025




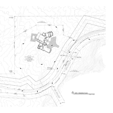
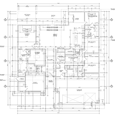
Lot 9 Saguaro Ranch
Location: Arizona, USA
Type of Construction: New Construction
Scope of Work:
→ Design Development
→ Construction Drawings
Software:
→ Autocad






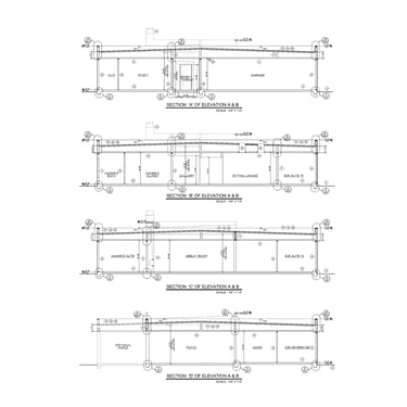
Farfield Arcadia Model
Location: Arizona, USA
Type of Construction: New Construction
Scope of Work:
→ Design Development
→ Construction Drawings
Software:
→ Autocad
Construction Drawings
CONSTRUCTION DRAWINGS
Commercial | Retail









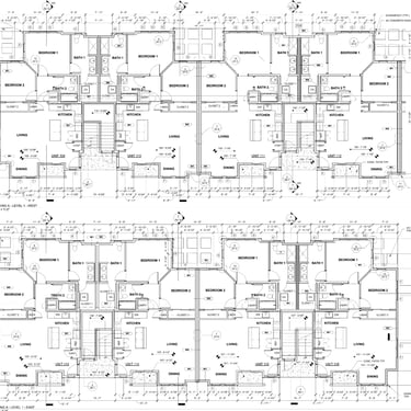
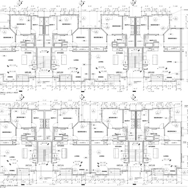
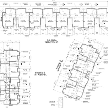
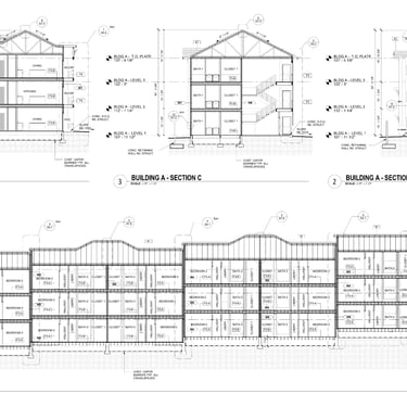
Multi-Family Apartment
Location: Colorado, USA
Type of Construction: New Construction
Scope of Work:
→ Design Development
→ Construction Drawings
Software:
→ Revit 2023






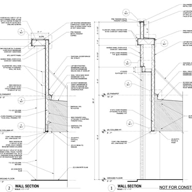
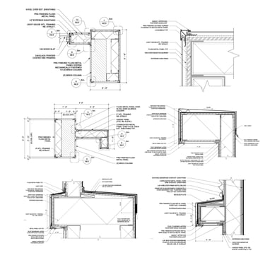
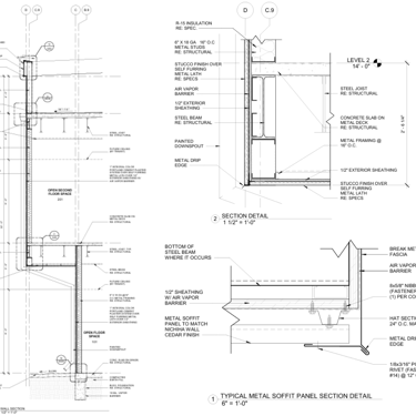
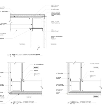
South Havana Complex
Location: Colorado, USA
Type of Construction: Facade Renovation
Scope of Work:
→ Facade Design
→ Design Development
→ Construction Drawings
Software:
→ Revit 2023




Remodeling of Salon
Location: Colorado, USA
Type of Construction: Renovation
Scope of Work:
→ Interior Deisgn
→ Material Selection
→ Construction Drawings
Software:
→ Revit 2023
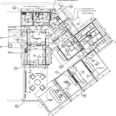
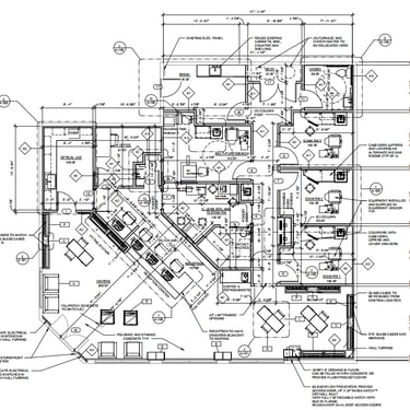
Remodeling of Medical Office
Location: Colorado, USA
Type of Construction: Renovation
Scope of Work:
→ Construction Drawings
Software:
→ Revit 2023







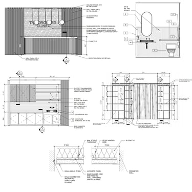
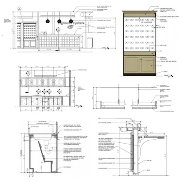
Highlands Eyecare Clinic
Location: Colorado, USA
Type of Construction: Renovation
Scope of Work:
→ Construction Drawings
Software:
→ Revit 2023
Proposed Retail Shop
Location: Texas, USA
Type of Construction: New Construction
Scope of Work:
→ Construction Drawings
Software:
→ Revit 2023






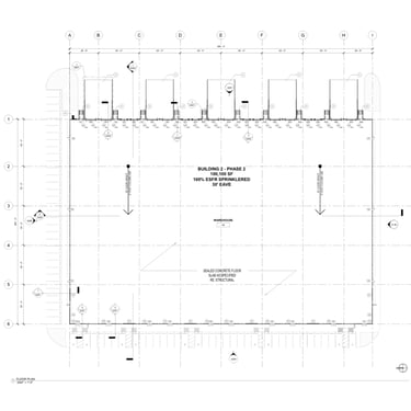
Industrial Warehouse
Location: Texas, USA
Type of Construction: New Construction
Scope of Work:
→ Construction Drawings
Software:
→ Revit 2023









Modeling and Rendering
MODELING AND RENDERING
Crosser Residence
Location: Arizona, USA
Type of Construction: New Construction
Scope of Work:
→ 3D Modeling and Rendering
→ Coordination with Principal Architect
Software:
→ SketchUp Pro
→ Revit
→ Lumion












Skinner Residence
Location: Arizona, USA
Type of Construction: New Construction
Scope of Work:
→ 3D Modeling and Rendering
→ Coordination with Principal Architect
Software:
→ SketchUp Pro
→ Revit
→ Lumion












