
Construction Drawings
CONSTRUCTION DRAWINGS
High End Residential | Multi-family Residential






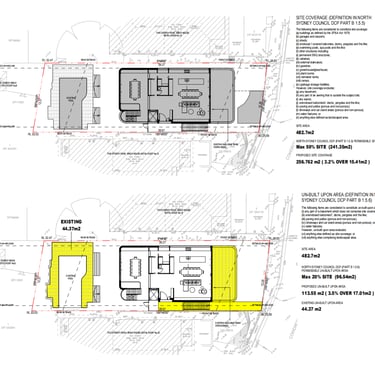
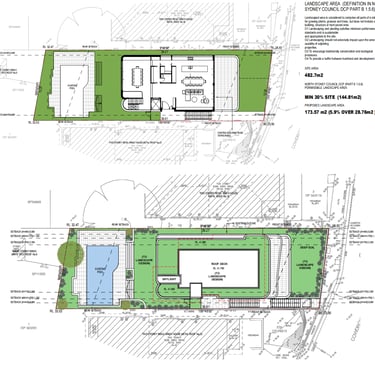
21 Cowdroy Avenue
Location: Sydney, Australia
Type of Construction: New Construction
Scope of Work:
→ Conceptual Drawings
→ Design Development
Software:
→ Revit 2021




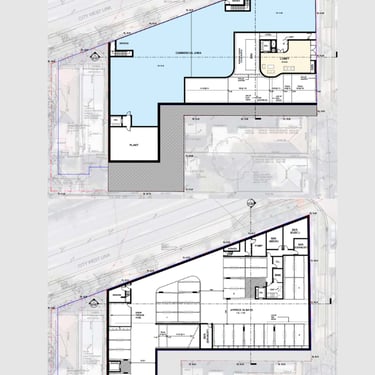
35 Units Mixed Used Building
Location: Sydney, Australia
Type of Construction: Addition and Renovation
Scope of Work:
→ Conceptual Drawings
→ Design Development
Software:
→ Revit 2021




13 Shellcove RD Kurraba PT
Location: Australia
Type of Construction: New Construction
Scope of Work:
→ Conceptual Drawings
→ Design Development
Software:
→ Revit 2021






39 Units Apartment
Location: Sydney, Australia
Type of Construction: New Construction
Scope of Work:
→ Conceptual Drawings
→ Design Development
Software:
→ Revit 2021, Sketchup
