
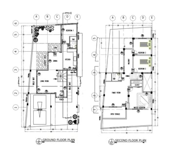
Proposed Two-storey Residential
Location: Imus, Cavite Philippines
Type of Construction: New Construction
Scope of Work:
→ Design Development
→ Construction Drawings
Software:
→ Autocad, SketchUp pro












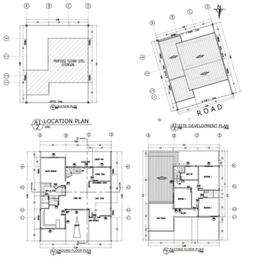
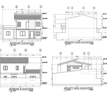
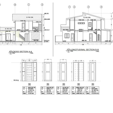
Proposed Two-storey Renovation
Location: Bacoor, Cavite Philippines
Type of Construction: New Construction
Scope of Work:
→ Design Development
→ Construction Drawings
Software:
→ Autocad, SketchUp pro
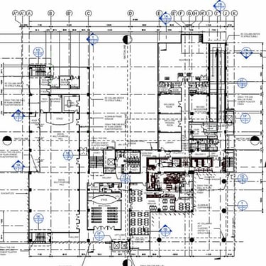
Proposed Fire Station
Location: Tarlac City, Tarlac Philippines
Type of Construction: New Construction
Scope of Work:
→ Design Development
→ Construction Drawings
Software:
→ Revit 2017
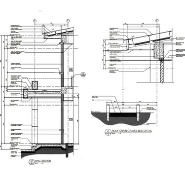
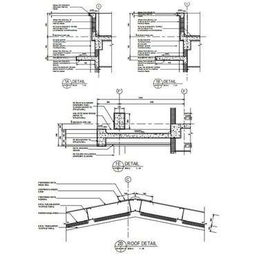
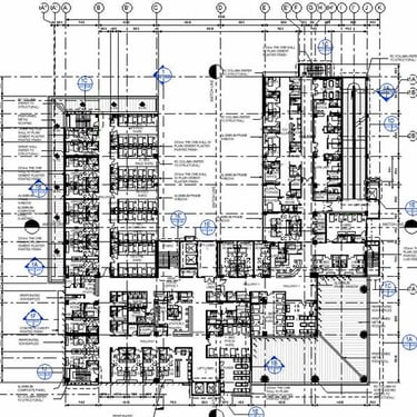
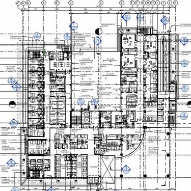
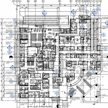
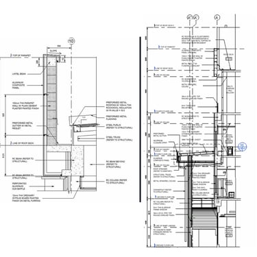
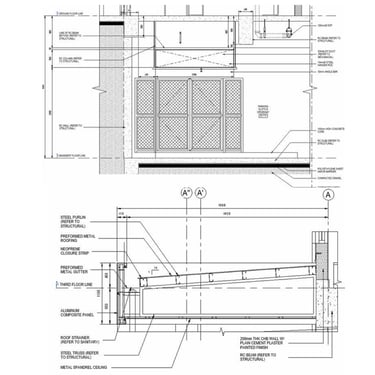
Proposed Level 2 Hospital
Location: Tarlac City, Tarlac Philippines
Type of Construction: New Construction
Scope of Work:
→ Design Development
→ Construction Drawings
Software:
→ Revit 2017




















